© ООО "Специализированный Застройщик "Финдом"

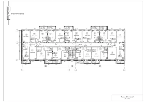
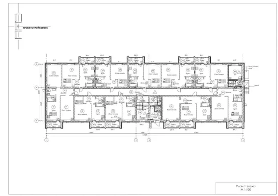
Начало строительства нового Жилого комплекса из четырех многоквартирных домов

Новый год начался со строительства комплекса, состоящего из четырех многоквартирных домов в поселке Бирюлинского зверсовхоза Высокогорского района
Начало строительства нового Жилого комплекса из четырех многоквартирных домов
#ЖК_Бирюлинскийпарк

Новый 2024 год начался со строительства комплекса, состоящего из четырех многоквартирных домов в поселке Бирюлинского зверсовхоза Высокогорского района. 

Современные просторные квартиры с планировкой, продуманной до мелочей. 

Инфраструктура, необходимая для комфортного проживания. 

Только качественные и современные материалы!

Новости

Ещё больше новостей в нашем Телеграм-канале

#акция
Не упустите шанс стать владельцем квартиры вашей мечты по выгодной цене!
#ЖК_Восьмоенебо
Старт продаж нового ЖК «Восьмое Небо» в живописном уголке города Кукмор
#ЖК_Бирюлинскийпарк
Каждый кирпич, каждая деталь этих домов — это результат кропотливой работы нашей команды, которая трудилась для того, чтобы создать пространство, где будет царить уют и счастье
#о_застройщике
Директор в честь Дня Строителя удостоен Благодарности Кабинета Министров Республики Татарстан за добросовестный труд и большой вклад в развитие строительного комплекса Республики Татарстан